26
$1,999,000 Sale
Listed 14 hours ago
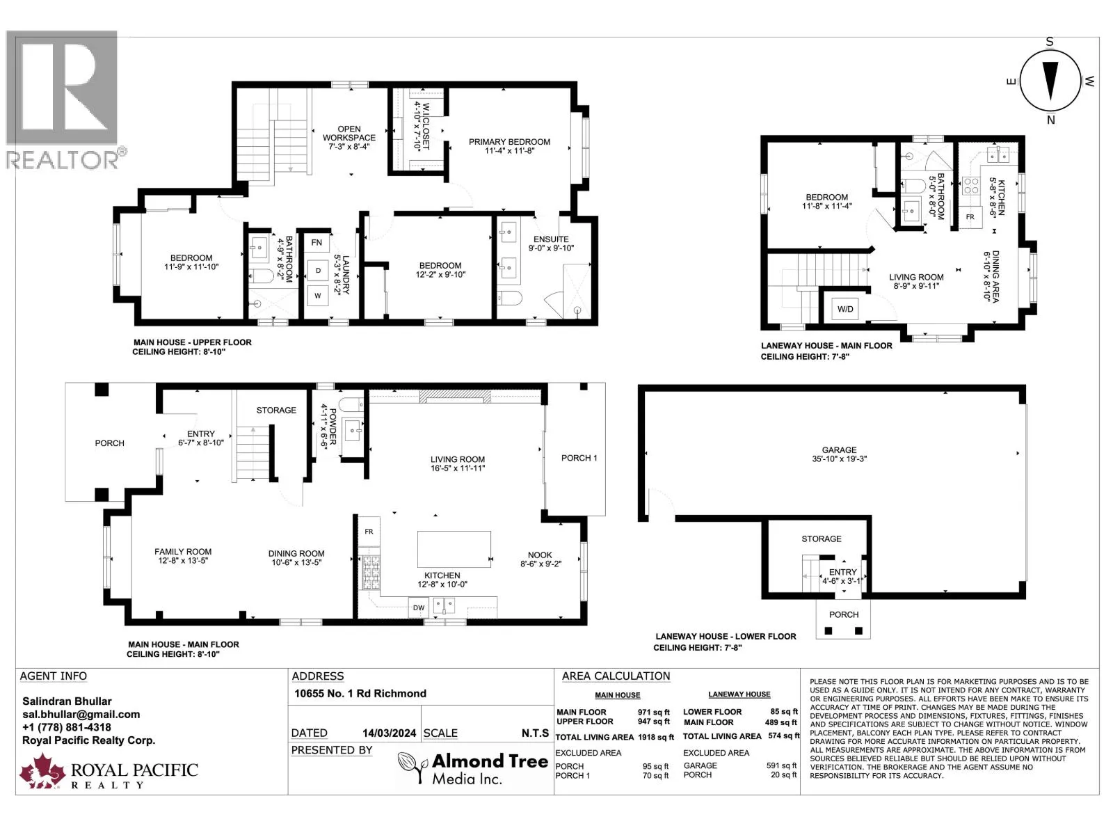
10655 NO. 1 ROAD
· 4
· 4.0
· 4
· 2500
Key Facts
Key facts for 10655 NO. 1 ROAD
Property Type
House, House
Parking
Garage: Yes, 4 parking
MLS #
R3055249
Size
2500 sqft
Basement
Finished, Unknown (Finished)
Listed on
-
Lot size
-
Tax
-
Days on Market
-
Year Built
2024
Maintenance Fee
-
Description
Brand new home with LANEWAY HOME & 3 car garage. This stunning home has 9' ceilings on both floors and window seating just walking distance to dyke's or Steveston Village. Home boasts an open-concept with main floor featuring a gourmet chef's kitchen and security system with cameras, hot water on de...mand, high-end luxurious stainless steel appliances and central A/C. Keep your toes warm with Radiant floor heating this winter. 2/5/10 year home warranty included for peace of mind. Walk to REC Centre, elementary/High school, shopping, Fisherman's Wharf. (id:10452)
Similar Properties (No results)
Listing courtesy of: Royal Pacific Realty Corp.
This REALTOR.ca listing content is owned and licensed by REALTOR® members of The Canadian Real Estate Association.